DEICHGEZWITSCHER, Hamburg

Bauherrin: Baugemeinschaft Deichgezwitscher GbR / STATTBAU Hamburg GmbH
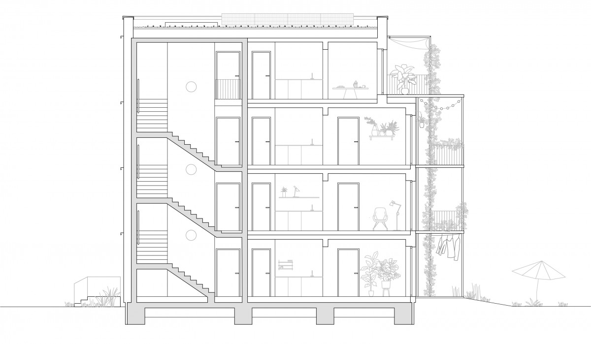
Beschreibung: Neubau zweier Wohnhäuser mit 20 Wohneinheiten und Gemeinschaftsraum in Holzbauweise
Ort: Hamburg-Georgswerder
Tragwerksplanung: Ingenieurbüro Hannes Römbell
Technischer Ausbau: Freie Ingenieure Langer Schwerdtfeger (HLS), Büro für Elektrotechnik Sönke Jansen (ELT)
Landschaftsarchitektur: Bunk & Münch Landschaftsarchitekten PartGmbH
Visualisierung: VIR.works
Leistungen: LP 1 – 5
Fertigstellung: 2026