PERGOLENVIERTEL BF10, Hamburg




















Bauherrin: Baugemeinschaften Pergolenviertel
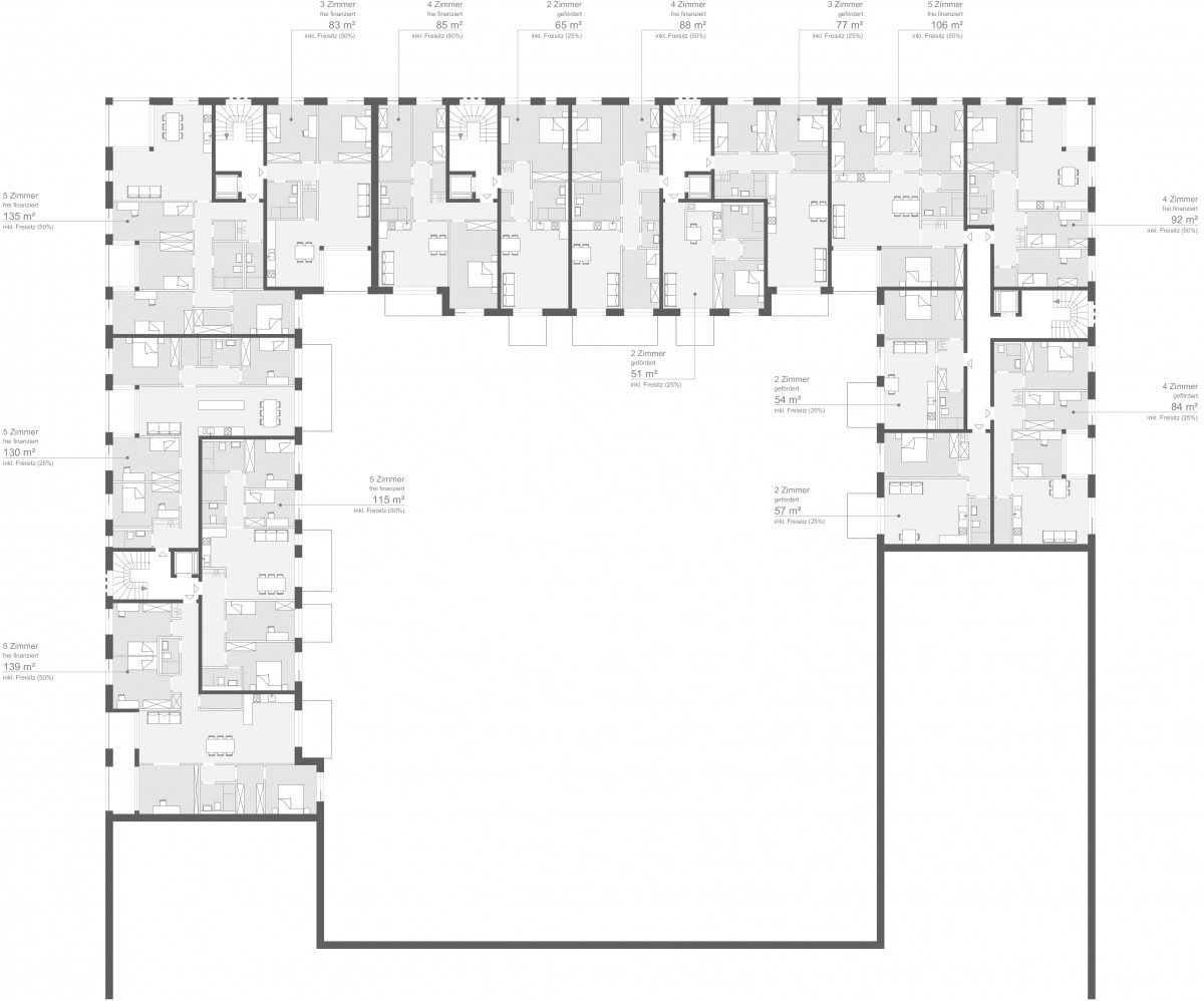
Beschreibung: Neubau eines Wohnhauses mit 51 Wohneinheiten
Ort: Pergolenviertel BF10, Hamburg-Barmbek
Tragwerksplanung: Weber Poll GbR
Technischer Ausbau: Ingenieursgesellschaft Torsten Erdmann mbH
Landschaftsarchitektur: Lichtenstein Landschaftsarchitekten
Visualisierung: Luminous Fields
Fotographie: Martin Kunze
Leistungen: LP 2 – 8
Wettbewerb: 1. Preis (2017)
Fertigstellung: 2023